![]()
天 満 松 茂 ビ ル
大阪市北区天満2丁目1番20号
地下鉄谷町線 天満橋駅徒歩5分
京阪本線 天満橋駅徒歩5分


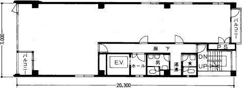
| 階 数 | 4F事務所 | 5F事務所 | 6F事務所 | |
| 面 積 | 29.95坪 | 29.95坪 | 27.54坪 | |
| 保証金 | 100,000円/坪 | 100,000円/坪 | 100,000円/坪 | |
| 賃 料 | 7,000円/坪 | 7,000円/坪 | 7,000円/坪 | |
| 共益費 | 3,000円/坪 | 3,000円/坪 | 3,000円/坪 | |
| 入居日 | 現 空 | 4月末空予定 | 現 空 |
|
所在地 |
大阪市北区天満2丁目1番20号 |
| 構 造 | 鉄骨造 |
| 規 模 | 地上7階、塔屋2階 |
| 竣 工 | 昭和63年 1月 |
| 主要設備 | 個別空調、エレベータ、機械警備 |
| 駐車場 | 無し |
■案内図
